Conversion of Offices To Flats - Plan 1 Enquire Now


Back To Residential Project Case Studies/Plans

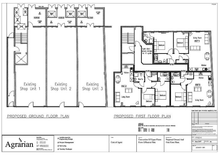
Click on the plan for an enlarged version.


Conversion of Offices To Flats - Plan 1