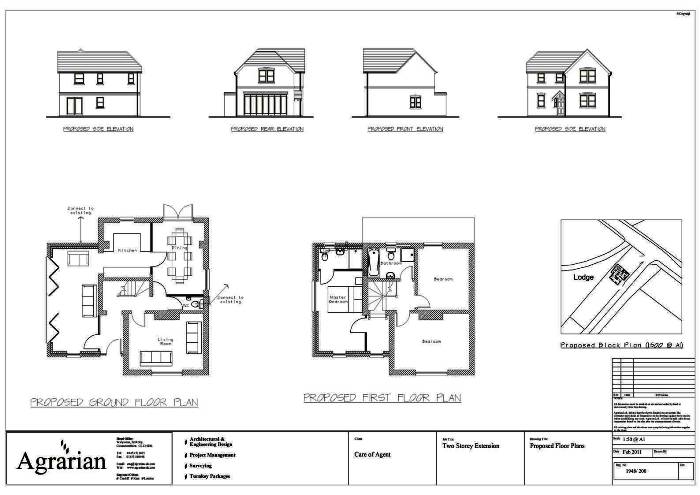
Two Storey Side Extension PlanEnquire Now


Back To Residential Project Case Studies/Plans

Click on the plan for an enlarged version.


Two Storey Side Extension Plan