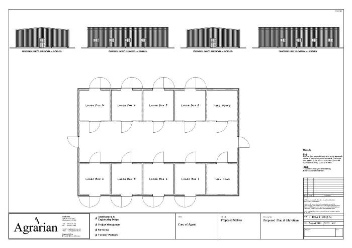
Eight Box Stable Plan With Tack Room And Feed StoreEnquire Now


More Equestrian Project Plans

Click on the plan for an enlarged version.


Eight Box Stable With Tack Room And Feed Store